Ice House on Slate Beach
Athens-Coxsackie, NY
On the Drawing Table
Construction begins in Spring 2026
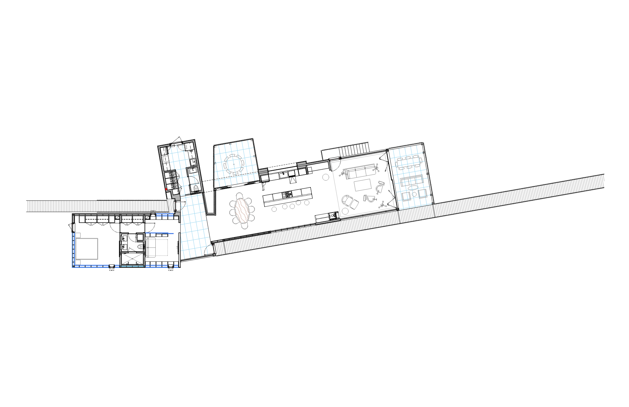
Custom Residence on the site of an historic Ice House on the edge Hudson River.
2,500 sf home / 11 acre site
Ice House on Slate Beach
Athens-Coxsackie, NY
On the Drawing Table
Construction begins in Spring 2026
Custom Residence on the site of an historic Ice House on the edge Hudson River.
2,500 sf home / 11 acre site